Lower level of multifamily house layout is given in this Autocad drawing file. Download now.
Description
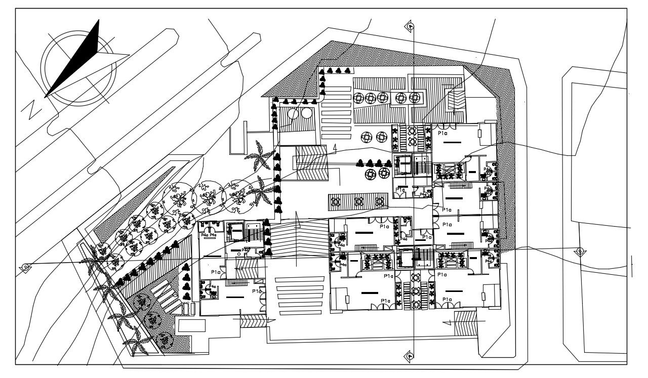
Lower level of multifamily house layout is given in this Autocad drawing file. This is G+7 apartment building. In this floor plan local commercial shops, reception, gent’s toilet, ladies toilet, and other details are available. For more details download the Autocad file. Thank you for downloading the Autocad file and other CAD program files from our website.
Uploaded by:

