10x37m hotel plan is given in this Autocad drawing file.Download now.
Description
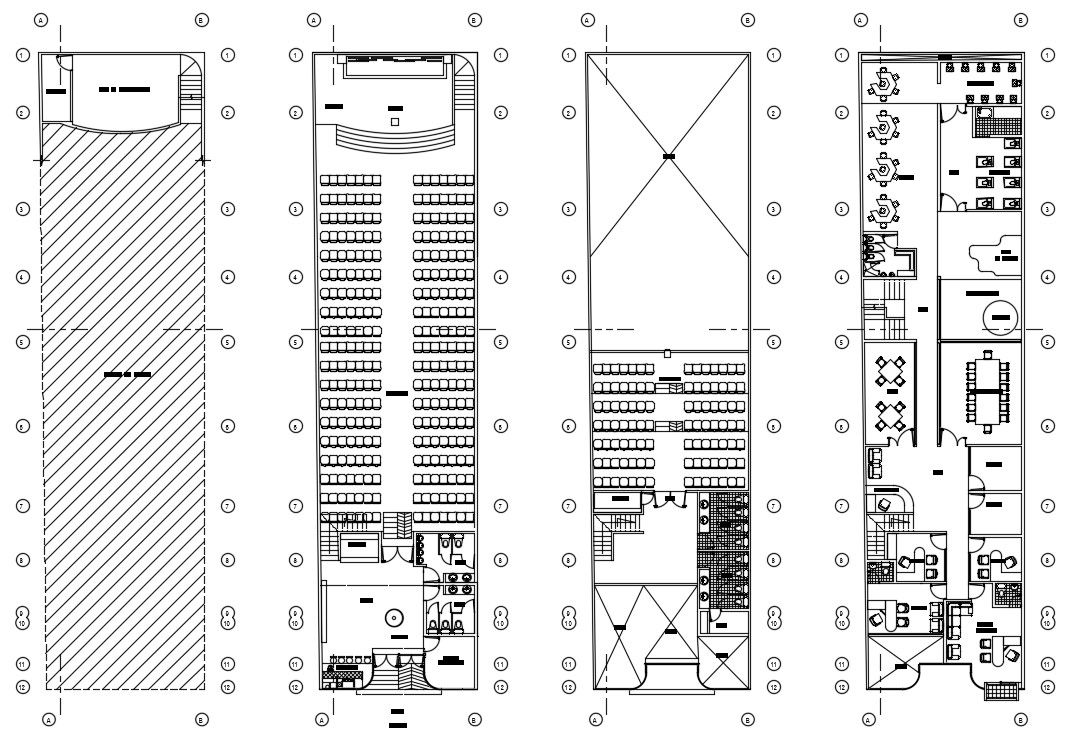
10x37m hotel plan is given in this Autocad drawing file. This is G+4 hotel building. In the ground and first floor auditorium is provided. In the third floor, office cabin, secretary room, conference hall, dining area, work area, gent’s toilet, ladies toilet, kid’s play area and reception is available. For more details download the Autocad file. Thank you for downloading the Autocad file and other CAD program files from our website.
Uploaded by:

