10x37m hotel plan of fourth and fifth floor is given in this Autocad drawing file. Download now.
Description
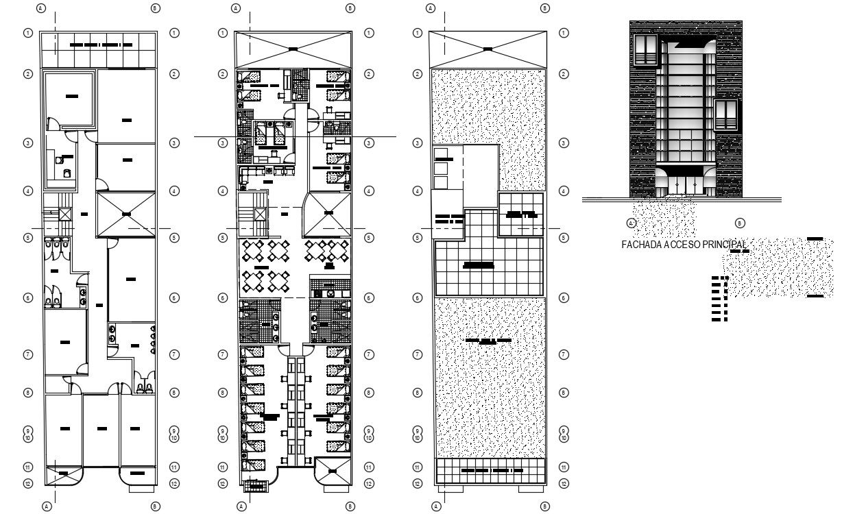
10x37m hotel plan of fourth and fifth floor is given in this Autocad drawing file. This is G+4 hotel building. Staying room, gent’s staying room, ladies starying room, attached toilet, hall, social area, gent’s toilet, ladies toilet, dinging area and double room with attached toilet is available. For more details download the Autocad file. Thank you for downloading the Autocad file and other CAD program files from our website.
Uploaded by:

