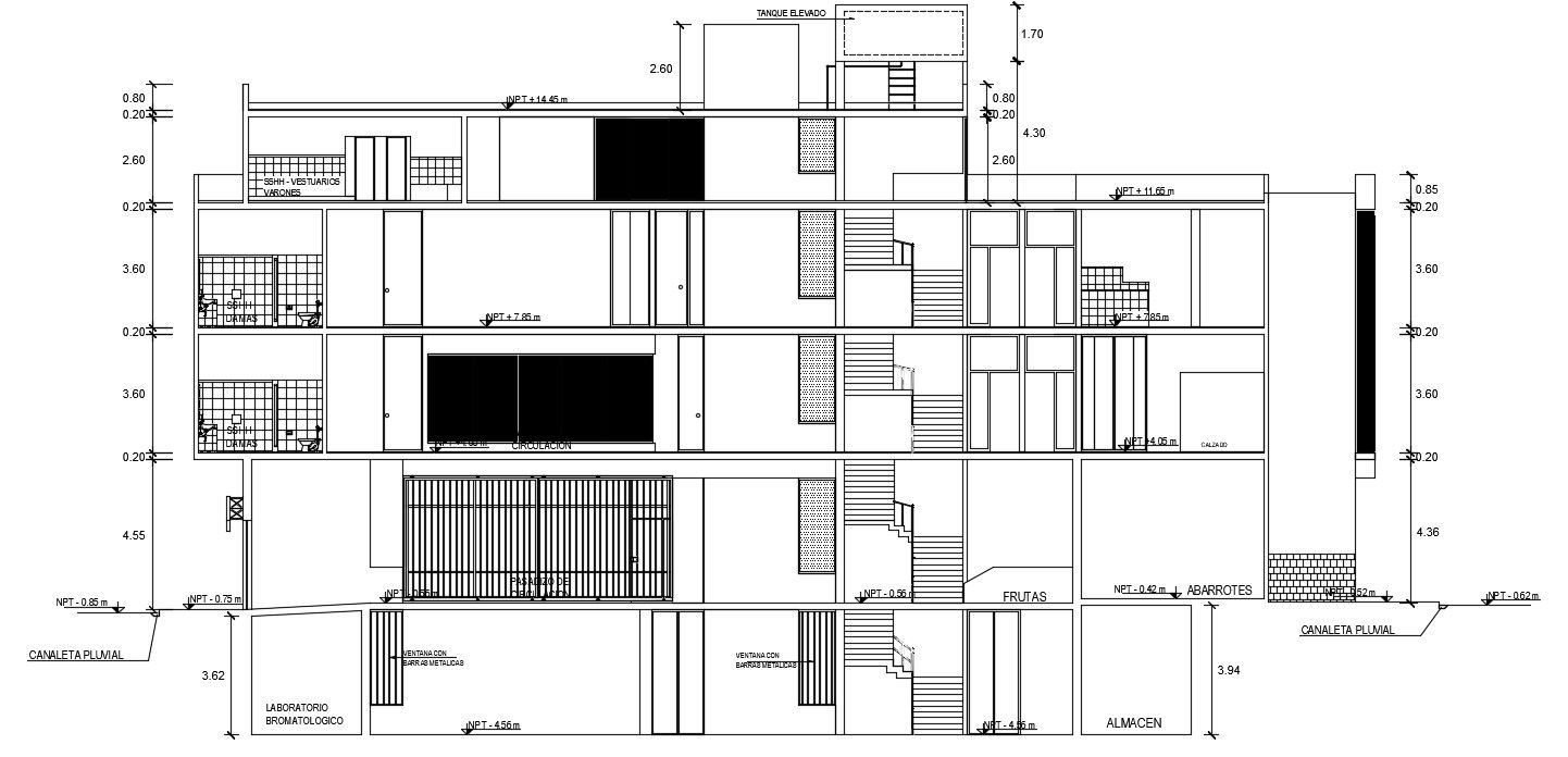
Left side section view of 46x33m food factory building is given in this Autocad drawing file.
Description
Left side section view of 46x33m food factory building is given in this Autocad drawing file. This is G+2 food factory building. In this, potatoes & grains, fish chamber, food area, chifleria, dining room, condiments, meats and other details are available. For more details download the Autocad file. Thank you for downloading the Autocad file and other CAD program files from our website.
Uploaded by:

