46x33m food factory lab plan is given in this Autocad drawing file.Download now.
Description
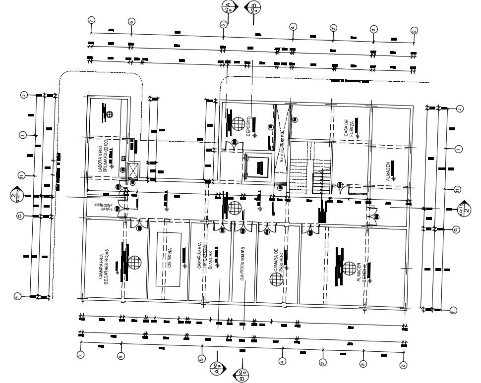
46x33m food factory lab plan is given in this Autocad drawing file. This is G+2 food factory building. Bromatological lab, house of force, cold chamber of white meat, cold chamber of red meat, and other details are available. For more details download the Autocad file. Thank you for downloading the Autocad file and other CAD program files from our website.
Uploaded by:

