15x42m hotel plan is given in this Autocad drawing file.Download now.
Description
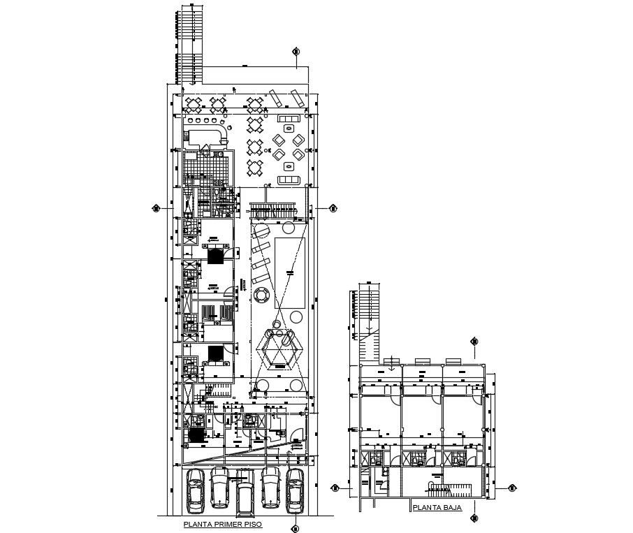
15x42m hotel plan is given in this Autocad drawing file. This is hotel cum restaurant plan. In this, reception, waiting hall, office room, bedrooms with attached toilet, service area, kitchen, dining area and other details are mentioned in this drawing model. For more details download the Autocad file. Thank you for downloading the Autocad file and other CAD program files from our website.
Uploaded by:

