Elevation detail of kitchen specified in this AutoCAD file. Download this 2d AutoCAD drawing file.
Description
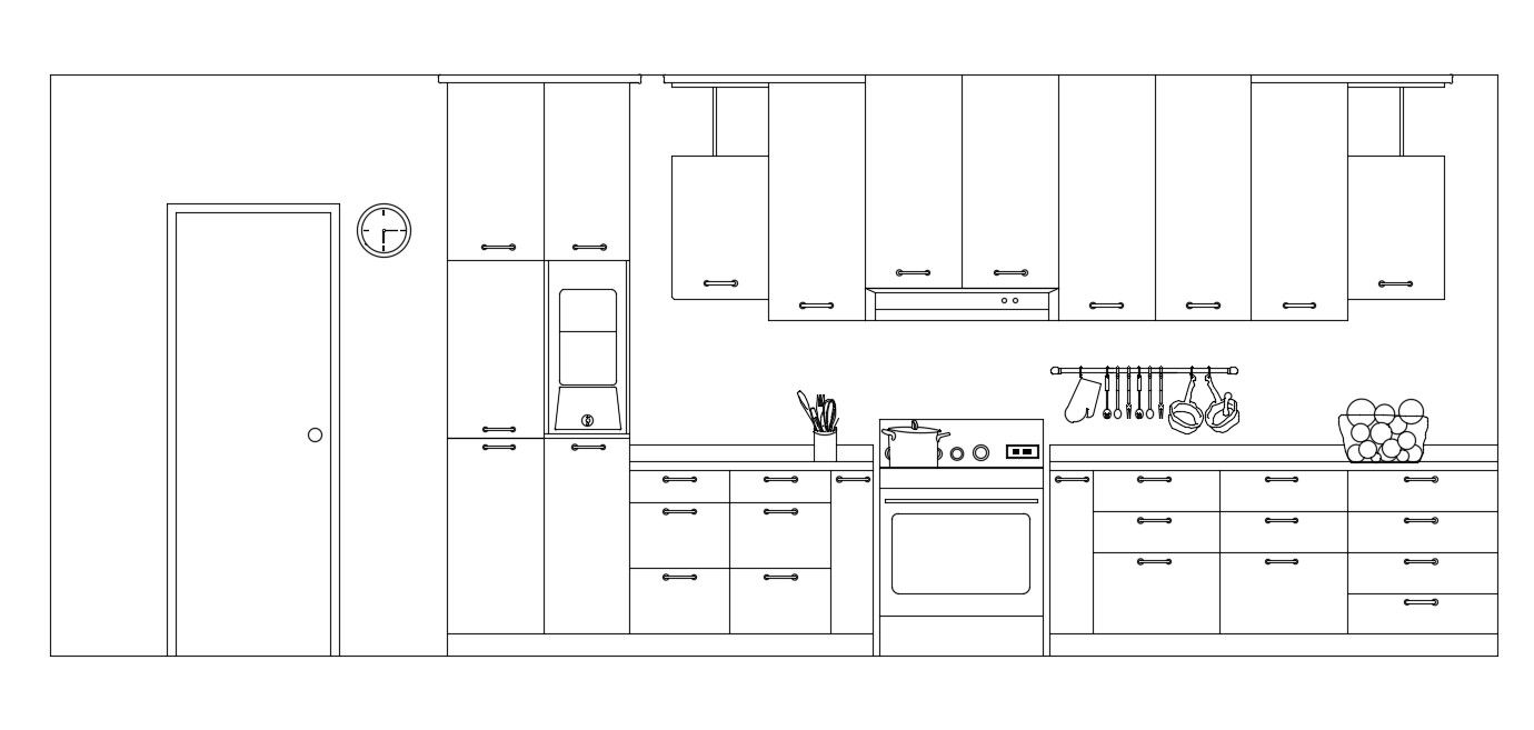
Elevation detail of kitchen specified in this AutoCAD file. this file consists of kitchen elevation detail drawing with window detail, furniture detail as crocker unit, platform detail, storage detail, window detail. this can be used by designers and architects. Download this 2d AutoCAD drawing file. this can be used by architects and engineers. Download this 2d AutoCAD drawing file.
Uploaded by:

