Apartment section drawing separated in this file. Download this 2d AutoCAD drawing file.
Description
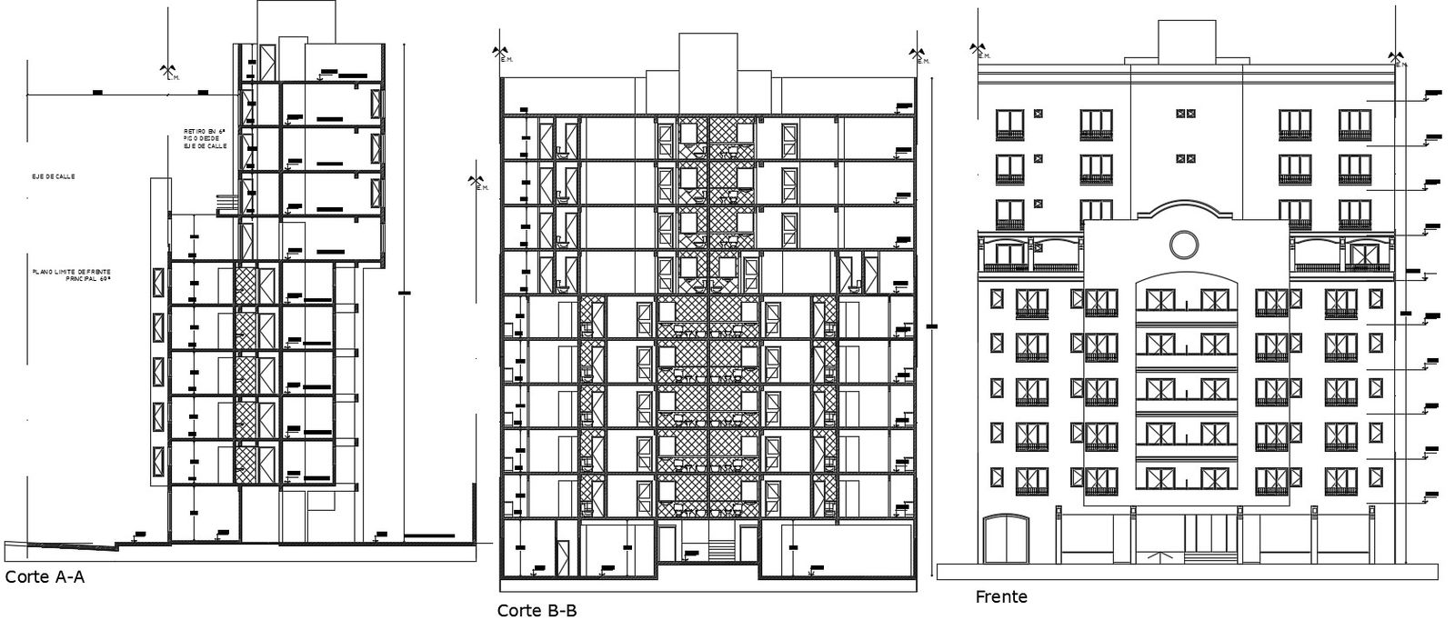
Apartment section drawing separated in this AutoCAD file. this file consists of exterior view, interior view, door window detail, glass window elevation detail, with dimensions and specifications. this can be used by architects and engineers. Download this 2d AutoCAD drawing file.
Uploaded by:

