82x20m second floor hotel plan is given in this Autocad drawing file.Download now.
Description
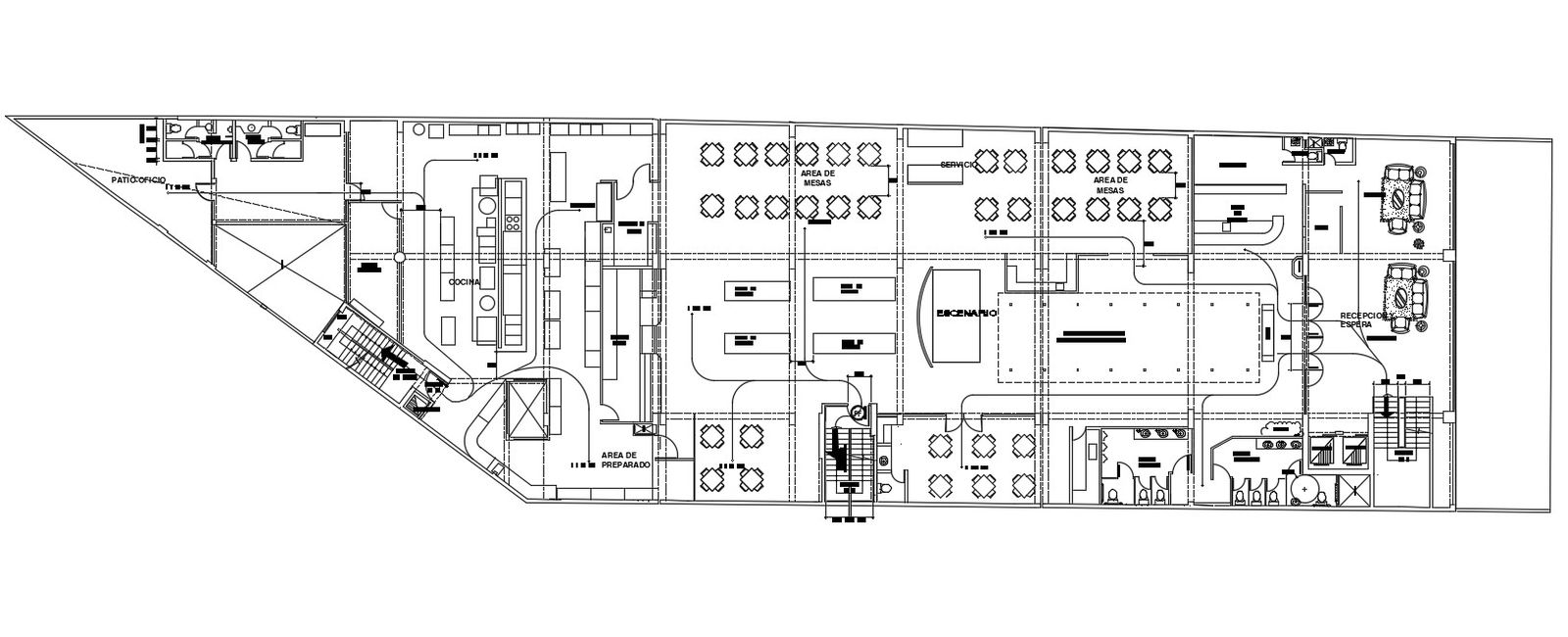
82x20m second floor hotel plan is given in this Autocad drawing file. This is multi function cum hotel building. This plan consists of restaurant, commercial area, rest room for male & female and other details are mentioned. For more details download the Autocad file. Thank you for downloading the Autocad file and other CAD program files from our website.
Uploaded by:

