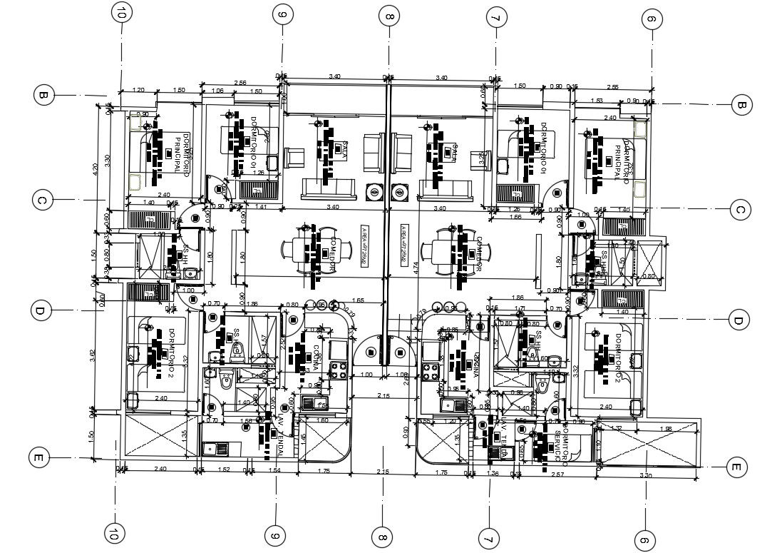
85x35m hotel plan is given in this Autocad drawing file.Download now.
Description
85x35m hotel plan is given in this Autocad drawing file. This is single story hotel building. In this dining areas, service area, kitchen, store room, rest room for male & female and other details are mentioned. For more details download the Autocad file. Thank you for downloading the AutoCAD file and other CAD program files from our website.
Uploaded by:

