17X13m villa house plan is given in this Autocad drawing file. Download now.
Description
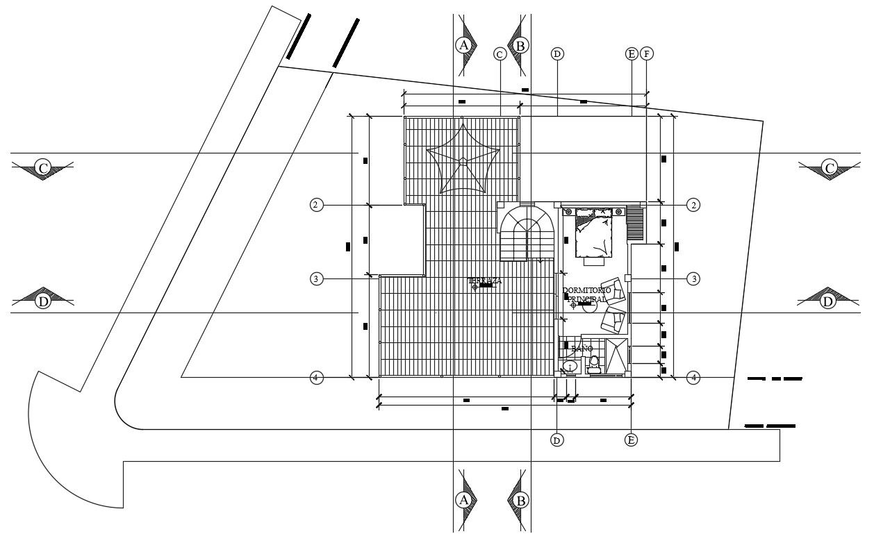
17X13m villa house plan is given in this Autocad drawing file. This is G+2 villa building. This is second floor villa plan. One master bedroom with attached toile is available. For more details download the Autocad drawing file. Thank you for downloading the Autoad drawing file and other CAD program files from our cadbull website.
Uploaded by:
