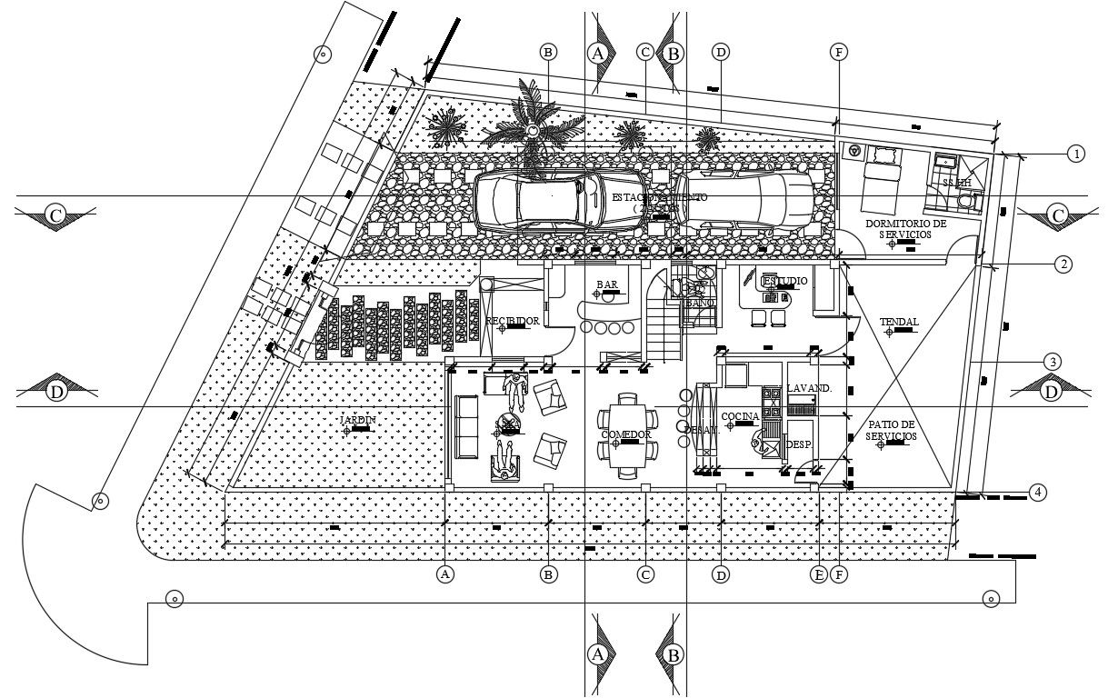
17X13m villa ground floor house plan is given in this Autocad drawing file. Download now.
Description
17X13m villa ground floor house plan is given in this Autocad drawing file. This is G+2 villa building. Car parking, kitchen, dining area, living hall, patio services, bar, study room, garden and master bedroom with attached toilet is available. For more details download the Autocad drawing file. Thank you for downloading the Autoad drawing file and other CAD program files from our cadbull website.
Uploaded by:

