17X13m villa first floor house plan is given in this Autocad drawing file. Download now.
Description
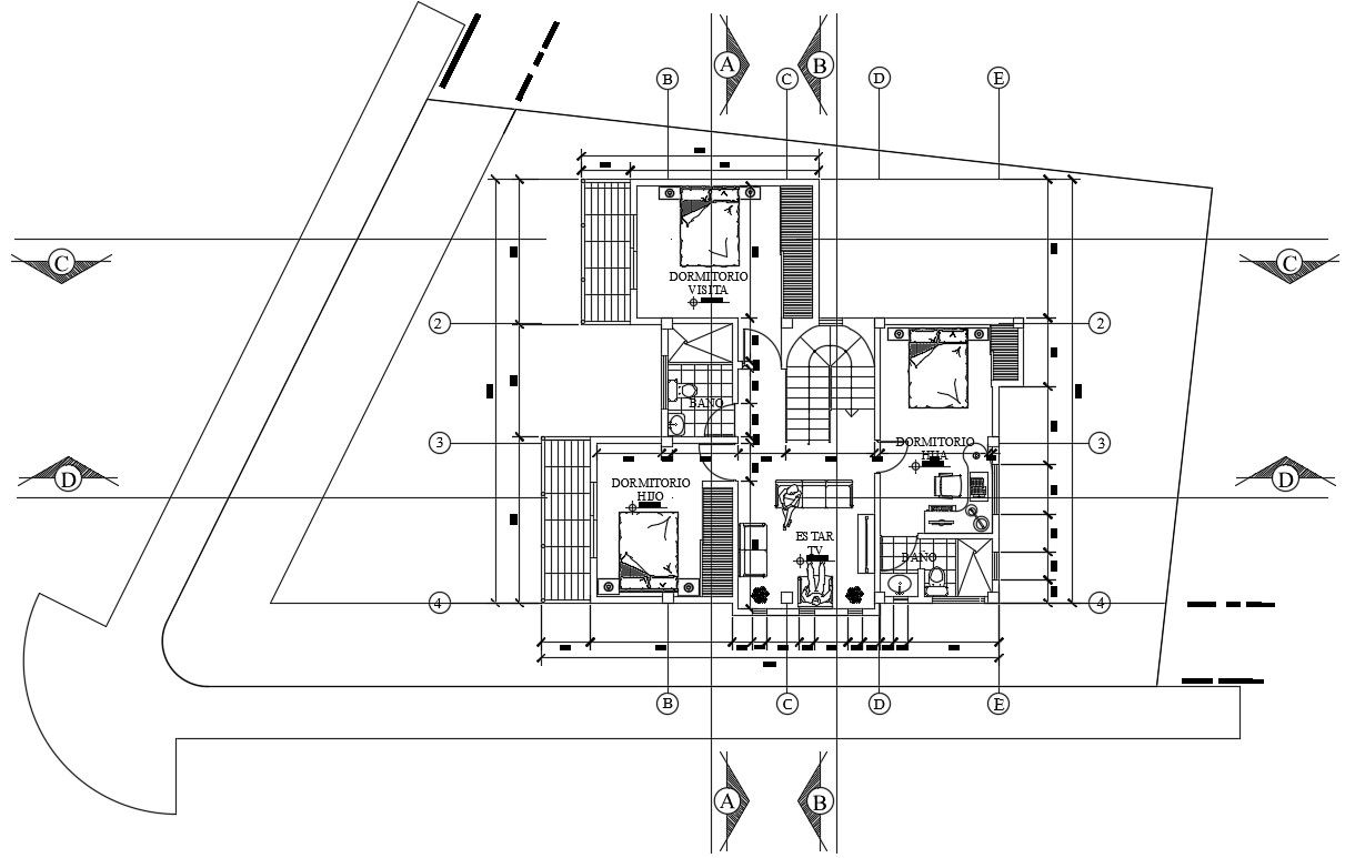
17X13m villa first floor house plan is given in this Autocad drawing file. This is G+2 villa building. Master bedroom with computer table, guest room, kid’s room, two common toilet and family lounge is available. For more details download the Autocad drawing file. Thank you for downloading the Autoad drawing file and other CAD program files from our cadbull website.
Uploaded by:

