17x15m twin house plan is given in this Autocad drawing file.Download now.
Description
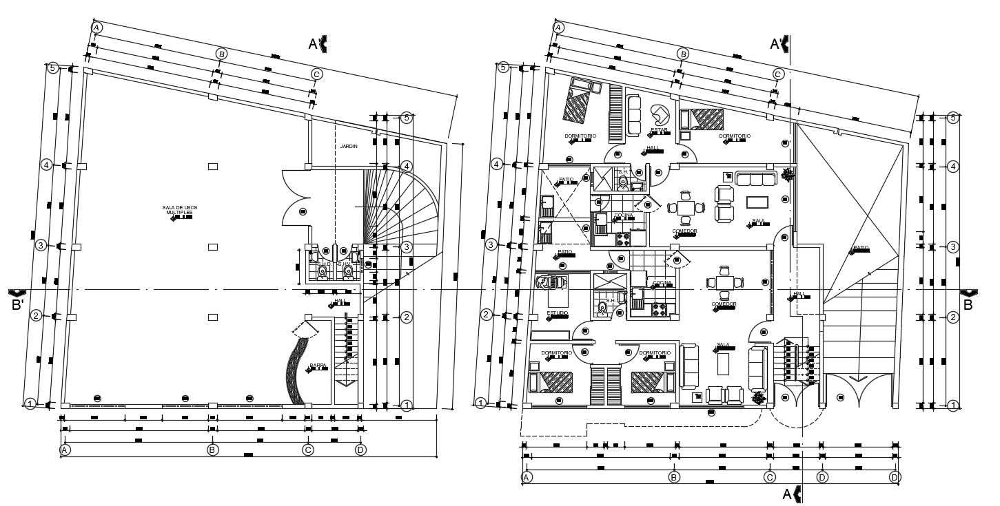
17x15m twin house plan is given in this Autocad drawing file. This is G+2 twin house building. In each house, the living area, study room, kitchen, dining area, master bedroom, guest room, patio and common toilet is available. For more details download the Autocad drawing file. Thank you for downloading the Autoad drawing file and other CAD program files from our cadbull website.
Uploaded by:

