Plumbing layout of 17x15m twin house first floor plan is given in this Autocad drawing file. Download now.
Description
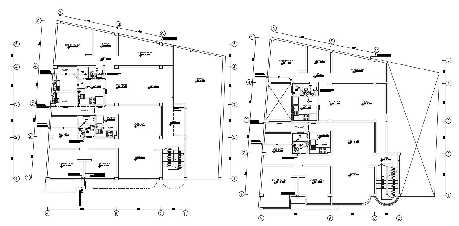
Plumbing layout of 17x15m twin house first floor plan is given in this Autocad drawing file. This is G+2 twin house building. In each house, the living area, study room, kitchen, dining area, master bedroom, guest room, patio and common toilet is available. For more details download the Autocad drawing file. Thank you for downloading the Autoad drawing file and other CAD program files from our cadbull website.
File Type:
DWG
File Size:
722 KB
Category::
Dwg Cad Blocks
Sub Category::
Autocad Plumbing Fixture Blocks
type:
Gold
Uploaded by:

