Column splice section view is given in this Autocad drawing file. Download now.
Description
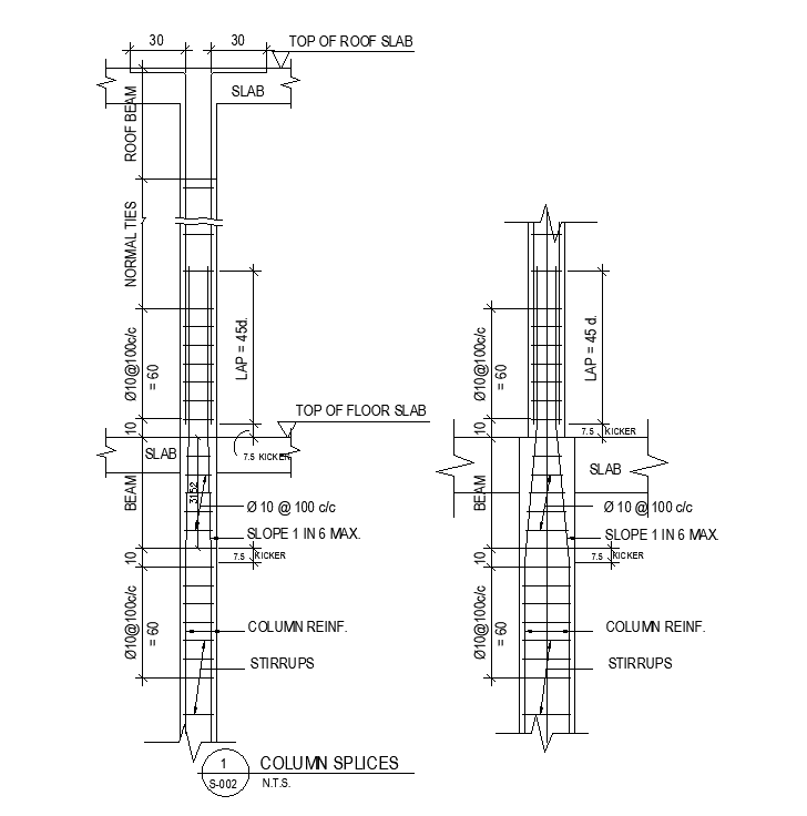
Column splice section view is given in this Autocad drawing file. Top of floor slab is given in this model. Column reinforcement and stirrups is mentioned in this model. For more details download the Autocad drawing file. Thank you for downloading the Autoad drawing file and other CAD program files from our cadbull website.
Uploaded by:

