Continuous Beam CAD Drawing AutoCAD File DWG Structural Detail

Continuous Beam CAD Drawing AutoCAD File DWG Structural Detail
Profile

Uploaded by:

Meera

Description

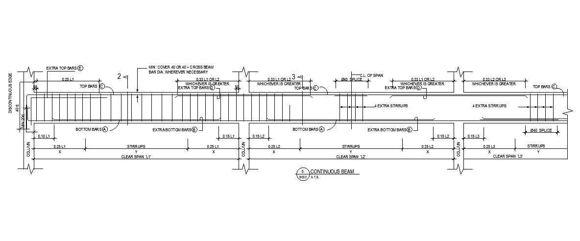
This continuous beam CAD drawing provides detailed structural layouts for architects and civil engineers. The AutoCAD DWG file includes accurate dimensions, reinforcement details, and sectional views. Editable and precise, it helps in planning and designing structural elements for residential, commercial, and industrial projects efficiently.

Profile

Uploaded by:

Meera

find Latest

Related Files

WhatsApp Chat