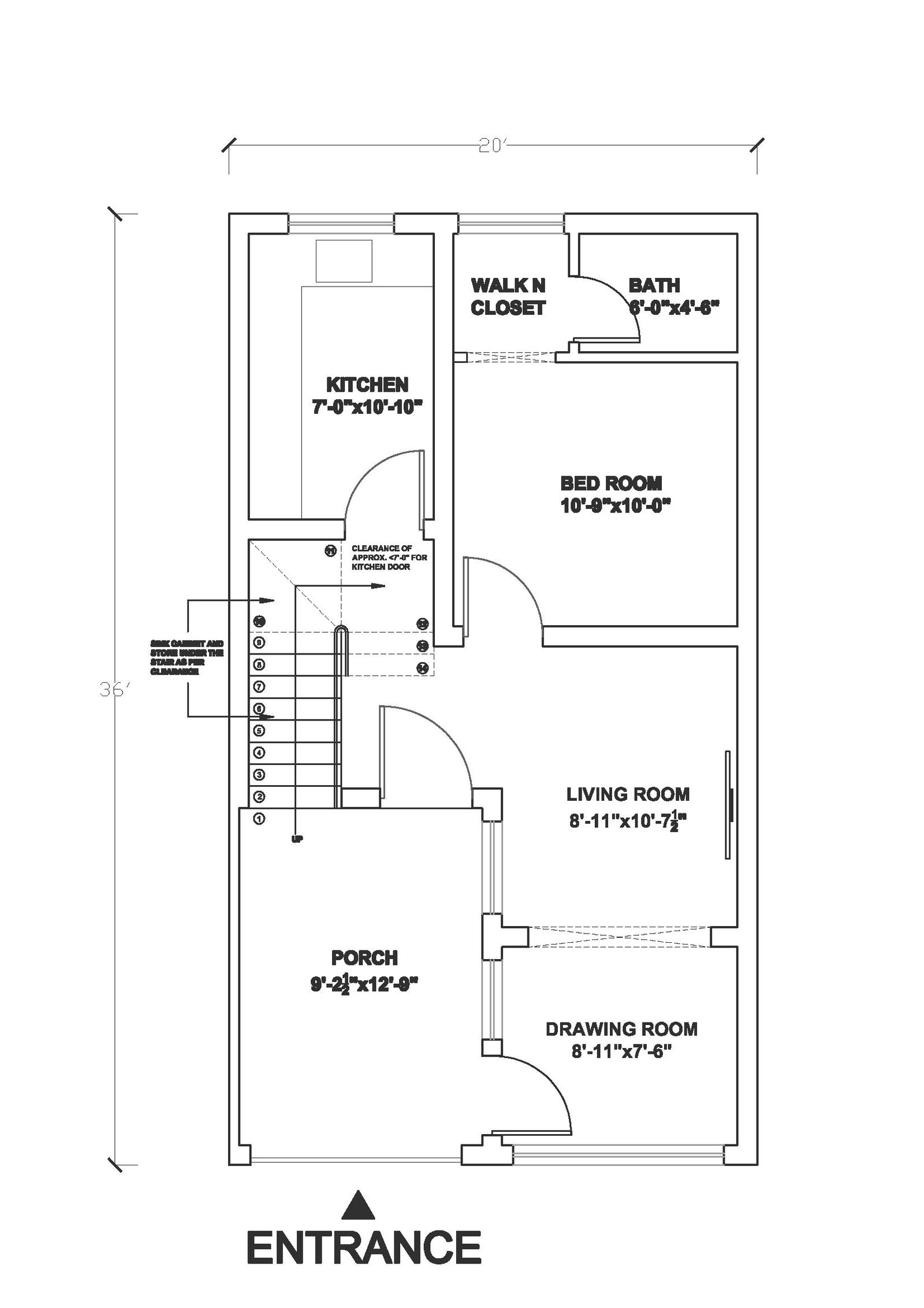
20 x 36 architectural plan with porch and large kitchen.
Description
20 x 36 architectural plan with porch and large kitchen.
architectural plan.
A house is a building that functions as a home, ranging from simple dwellings such as rudimentary huts of nomadic tribes and the improvised shack
Uploaded by:

