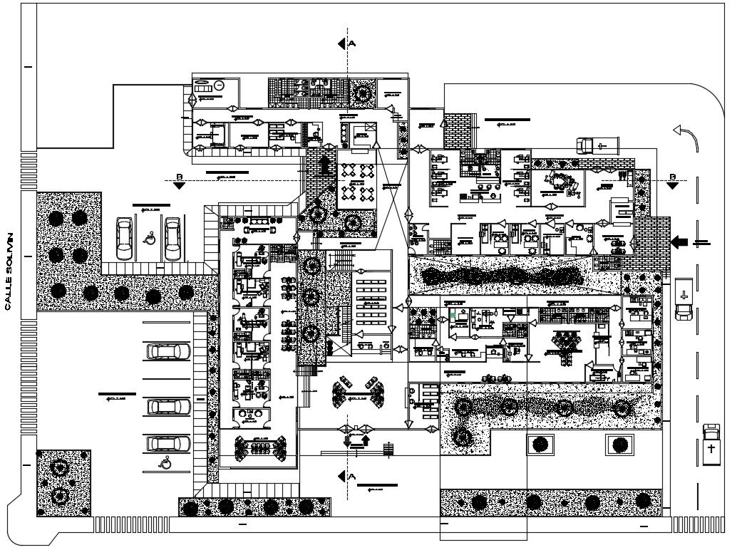
Architectural 2D Floor plan Drawing of the Hotel building details is given. Download the AutoCAD DWG file.
Description
Architectural 2D Floor plan Drawing of the Hotel building details is given. The Garden and passage layout is clearly given in this drawing file. This drawing will be very useful for civil engineers and architects. Thank you so much for downloading the DWG file from the cadbull website. Download the AutoCAD DWG file.

Uploaded by:
AS
SETHUPATHI

