AutoCAD G2 House Floor Plan with Elevation CAD Drawing Layout
Description
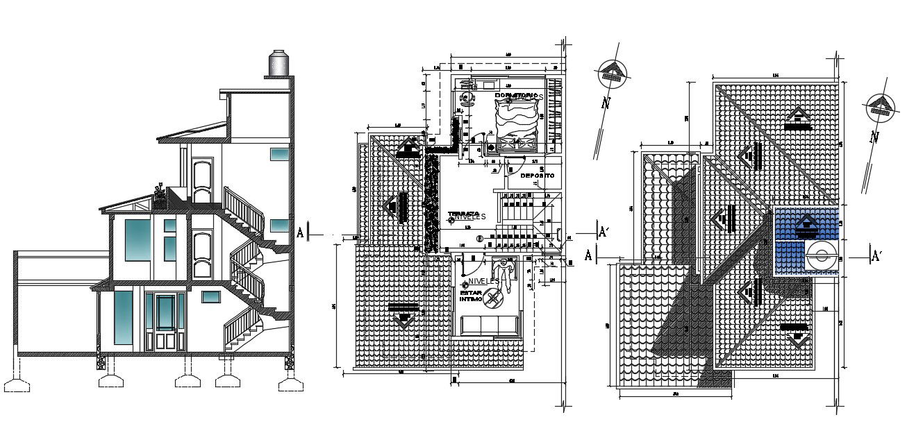
This AutoCAD DWG file offers a full architectural design of a G+2 house, including both floor plans and exterior elevation views. The layout presents the arrangement of each level, entryway placement, staircase position, and room distribution. The elevation showcases facade styling and structural dimensions, making it suitable for architects, civil engineers, and contractors looking for a ready reference for multi-story residential construction.

Uploaded by:
AS
SETHUPATHI

