Different architectural styles House design

Different architectural styles House design
Profile

Uploaded by:

Priyanka

Patel

Description
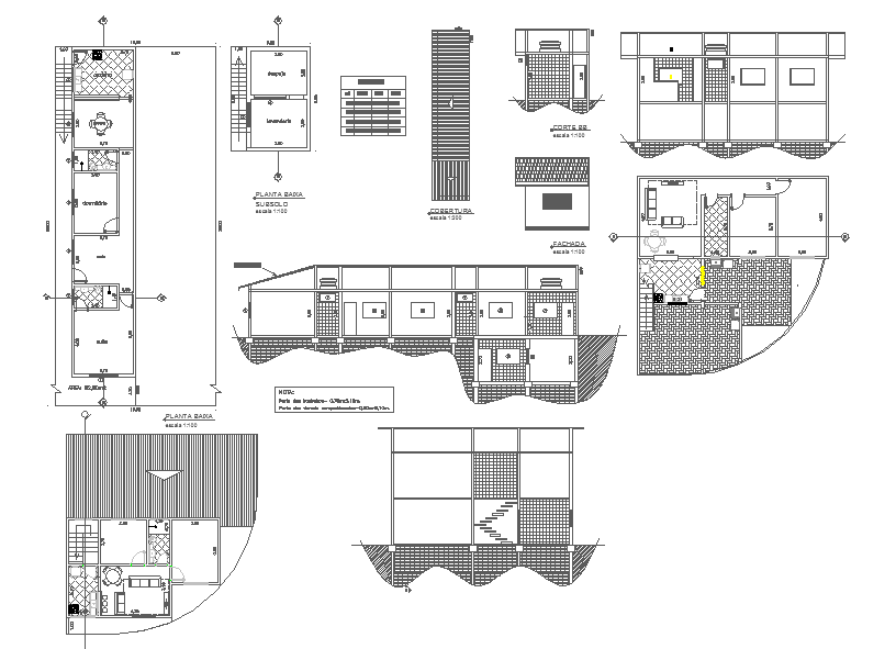
Elevation & Plan Design, Section detail.Door of the bathrooms- 0,70mx2,10m. Door of the other compartments-0,80mx2,10m. & Different type of house lay-out design.
Profile

Uploaded by:

Priyanka

Patel

find Latest

Related Files

WhatsApp Chat