G+5 office building elevation CAD drawing details. Download now.
Description
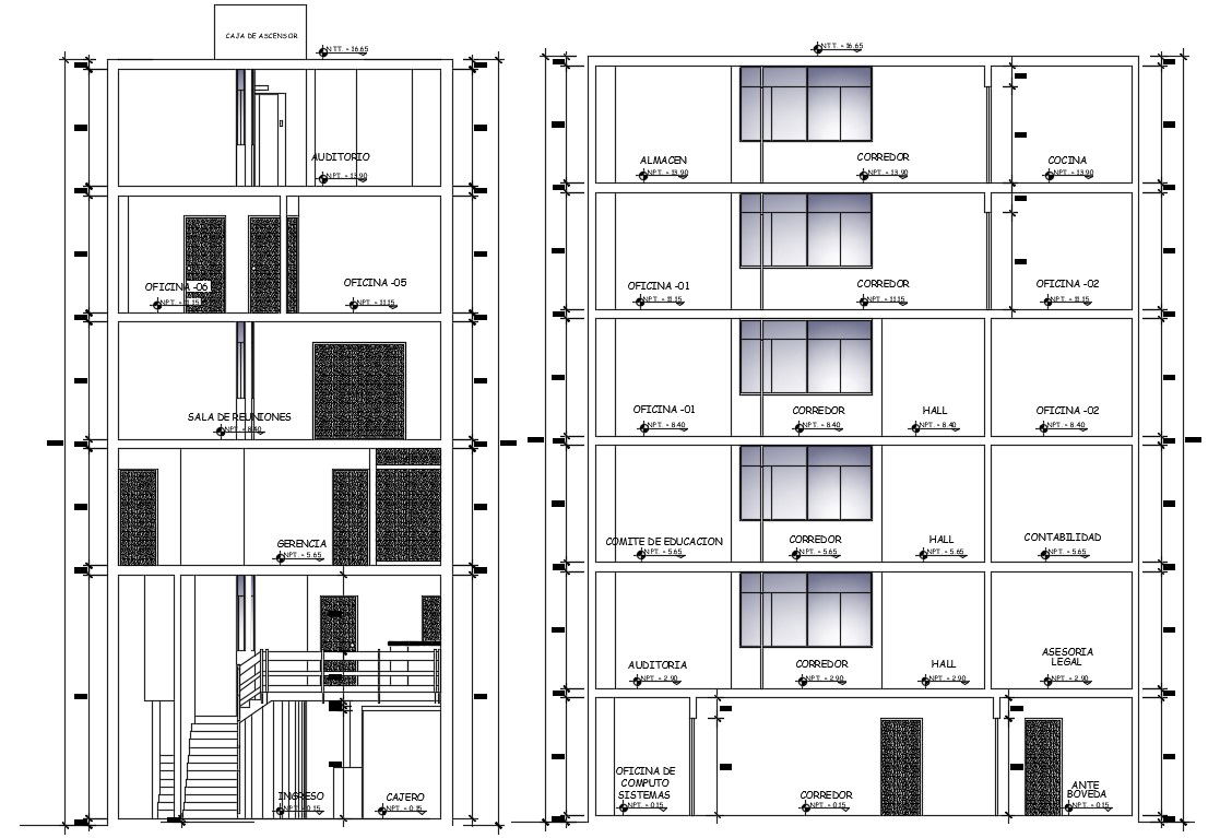
G+5 office building elevation CAD drawing details. In this plan, the glass window view, staircase, is shown clearly. This drawing is very useful for structural engineers, Architect, and civil engineers. Thanks for downloading CAD and other CAD program files on the CADBULL.COM website. Download now.

Uploaded by:
AS
SETHUPATHI

