Section detail of small office building CAD drawing details. Download now.
Description
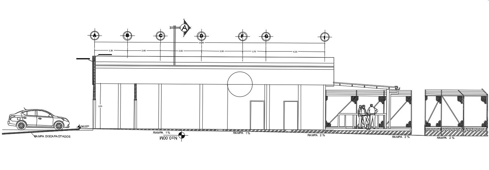
Section detail of small office building CAD drawing details. In this cad drawing plan, the glass window view, car parking is clearly shown. It will be very handy for structural engineers, Architect, and civil engineers. Thanks for downloading CAD and other CAD program files on the CADBULL.COM website. Download now.

Uploaded by:
AS
SETHUPATHI

