Back side section view of 26x41m office building has been given in this Autocad drawing file. Download now.
Description
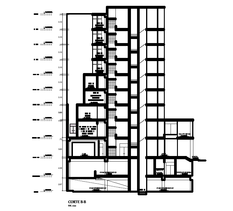
Back side section view of 26x41m office building has been given in this Autocad drawing file. Total height of the building is 40m. This is G+10 floor office building. In this, auditorium, conference room, cafeteria, kitchen, car parking, dining area, director room, secretary room, work area, office rooms, foyer, water closet for male, water closet for female, and other details are available in this plan. For more details download the Autocad drawing file. Thank you for downloading the Autocad drawing file and other CAD program files from our website.
Uploaded by:

