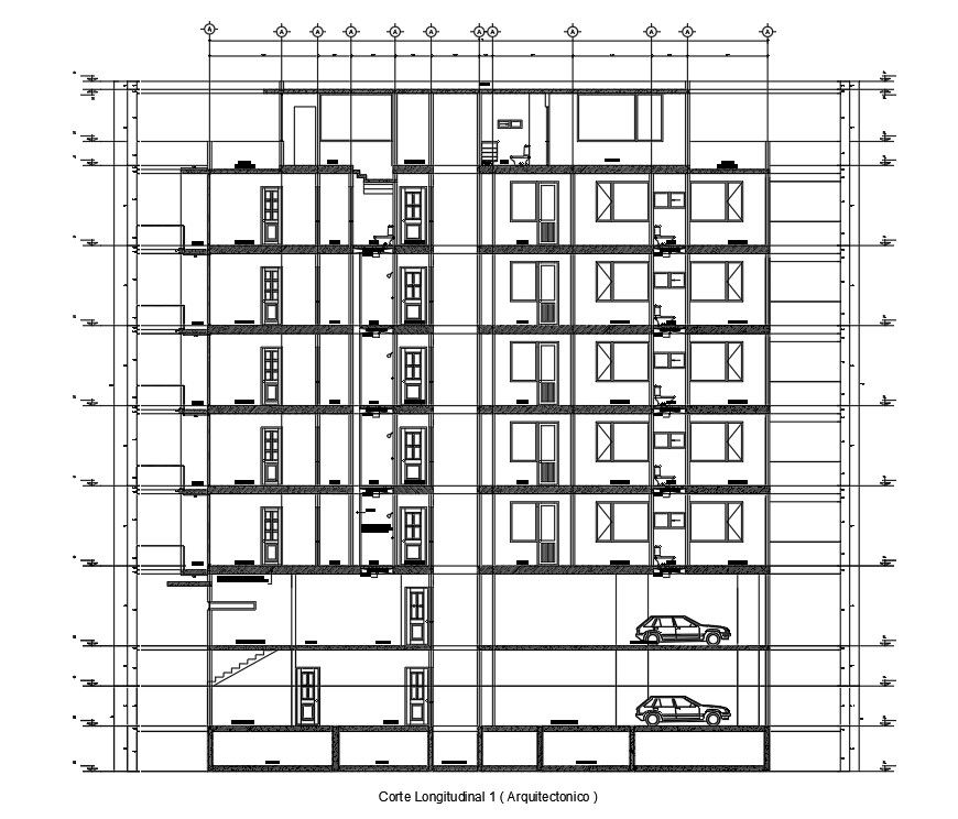
Right side section view of 50x43m commercial shop building is given in this Autocad drawing file.Download the AutoCAD model.
Description
Right side section view of 50x43m commercial shop building is given in this Autocad drawing file. This is B+7 commercial building. Smoke lobby, pump room, MSB room, fan room, car parking, drive way, ramp gradient and rest room is available in the basement floor. Retail shops, VIP car parking, lift lobby, walk way, concourse area, TNB switch gear room, and other details are mentioned in this model. For more details download the AutoCAD drawing file. Thank you for downloading the AutoCAD drawing file and other CAD program files from our website.
Uploaded by:

