12x28m first floor villa plan is given in this Autocad drawing file. Download now.
Description
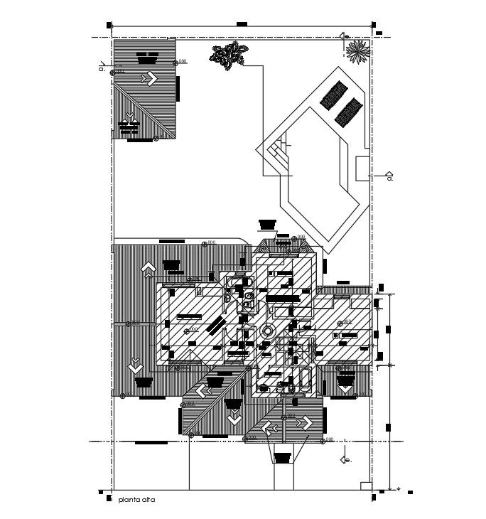
12x28m first floor villa plan is given in this Autocad drawing file. This is G+1 villa building. In the first floor, master bedroom with attached toilet, kid’s room with attached bathroom, guest room, common toilet and family area is available. For more details download the Autocad drawing file. Thank you for downloading the Autocad drawing file and other CAD program files from our website.
Uploaded by:

