40x20m bank roof plan is given in this Autocad drawing file. Download the Autocad model.
Description
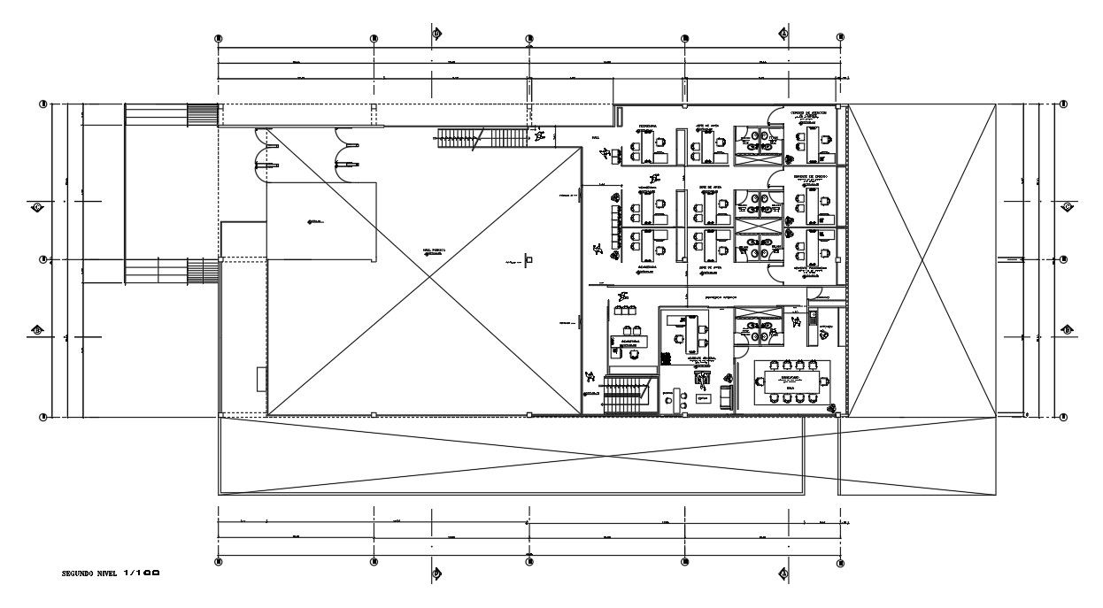
40x20m bank roof plan is given in this Autocad drawing file. This is G+1 bank building. In this ground floor, public hall, maintenance area, tellers, reports, anteboveda, cleaning cubicle, 1 parking lot, security instrument deposit, monitoring room, service counter, anchorage room, filter, atrium, head of booth and other details are mentioned. Head of area, secretary room, credit manager cabin, customer service manager cabin, general manager room, bar, living area, director room, gent’s toilet and ladies toilet is available in this first floor. For more details download the Autocad drawing file. Thank you for downloading the Autocad drawing file and other CAD program files from our website.
Uploaded by:

