Furniture’s detail of 48x32m ground floor bank plan is given in this Autocad drawing file. Download now.
Description
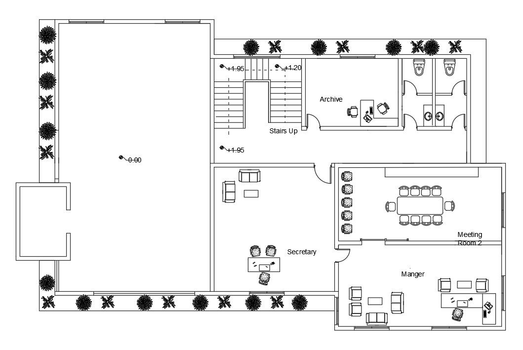
Furniture’s detail of 48x32m ground floor bank plan is given in this Autocad drawing file. This is G+1 bank building. Secretary room, car parking, meeting room 2, manager room, gent’s toilet, ladies toilet, reception & help desk is available. For more details download the Autocad drawing file. Thank you for downloading the Autocad drawing file and other CAD program files from our website.
Uploaded by:

