Left side section view of 15X28m villa building is given in this Autocad drawing file. Download now.
Description
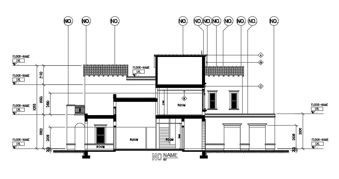
Left side section view of 15X28m villa building is given in this Autocad drawing file. This is G+1 villa building. In the ground floor, living area, kitchen, dining area, common toilet, and master bedroom with attached toilet is available. In the first floor, master bedroom with attached toilet, kid’s bedroom with attached toilet, guest room and common toilet is available. For more details download the Autocad drawing file. Thank you for downloading the Autocad drawing file and other CAD program files from our website.
File Type:
DWG
File Size:
444 KB
Category::
Structure
Sub Category::
Section Plan CAD Blocks & DWG Drawing Models
type:
Gold
Uploaded by:

