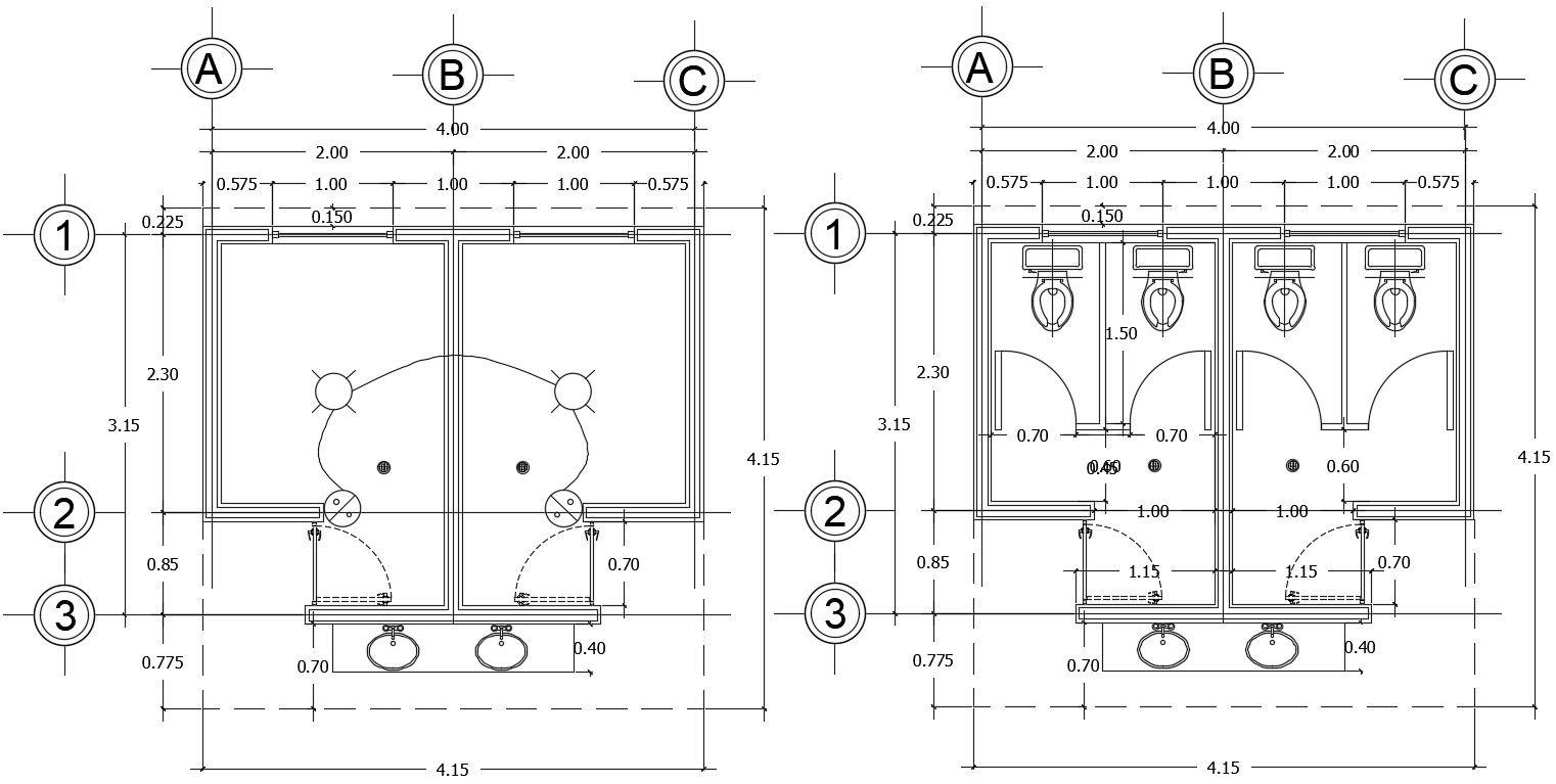
4x4m bathroom plan is given in this Autocad drawing file. Download the Autocad model.
Description
4x4m bathroom plan is given in this Autocad drawing file. An electrical layout of the bathroom is given in this model. Wash basin, and water closets are available in this plan. For more details download the Autocad file. Thank you for downloading the Autocad drawing file and other CAD program files from our Cadbull website. Interior detail of the bathroom building, Front and rear elevation of the bathroom building, AutoCAD file, 2D AutoCAD model, AutoCAD DWG drawing file, DWG drawing file
Uploaded by:

