A section view of 20x14m restaurant building is given in this Autocad drawing file. Download now.
Description
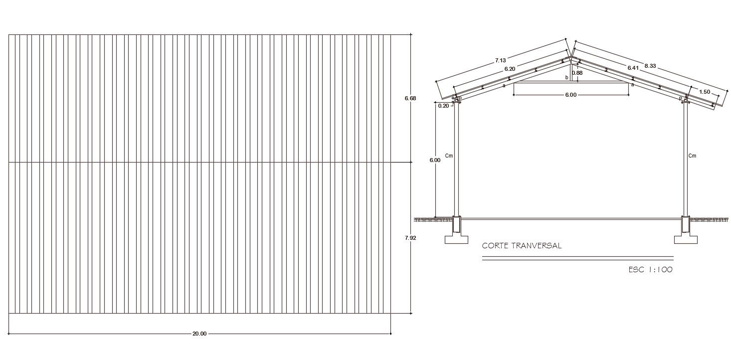
A section view of 20x14m restaurant building is given in this Autocad drawing file. This is restaurant building. Total height of the building is 7m. For more details download the Autocad file. Thank you for downloading the Autocad drawing file and other CAD program files from our Cadbull website.
File Type:
DWG
File Size:
356 KB
Category::
Structure
Sub Category::
Section Plan CAD Blocks & DWG Drawing Models
type:
Gold
Uploaded by:

