Column layout of 20x14m restaurant plan is given in this Autocad drawing file. Download the Autocad model.
Description
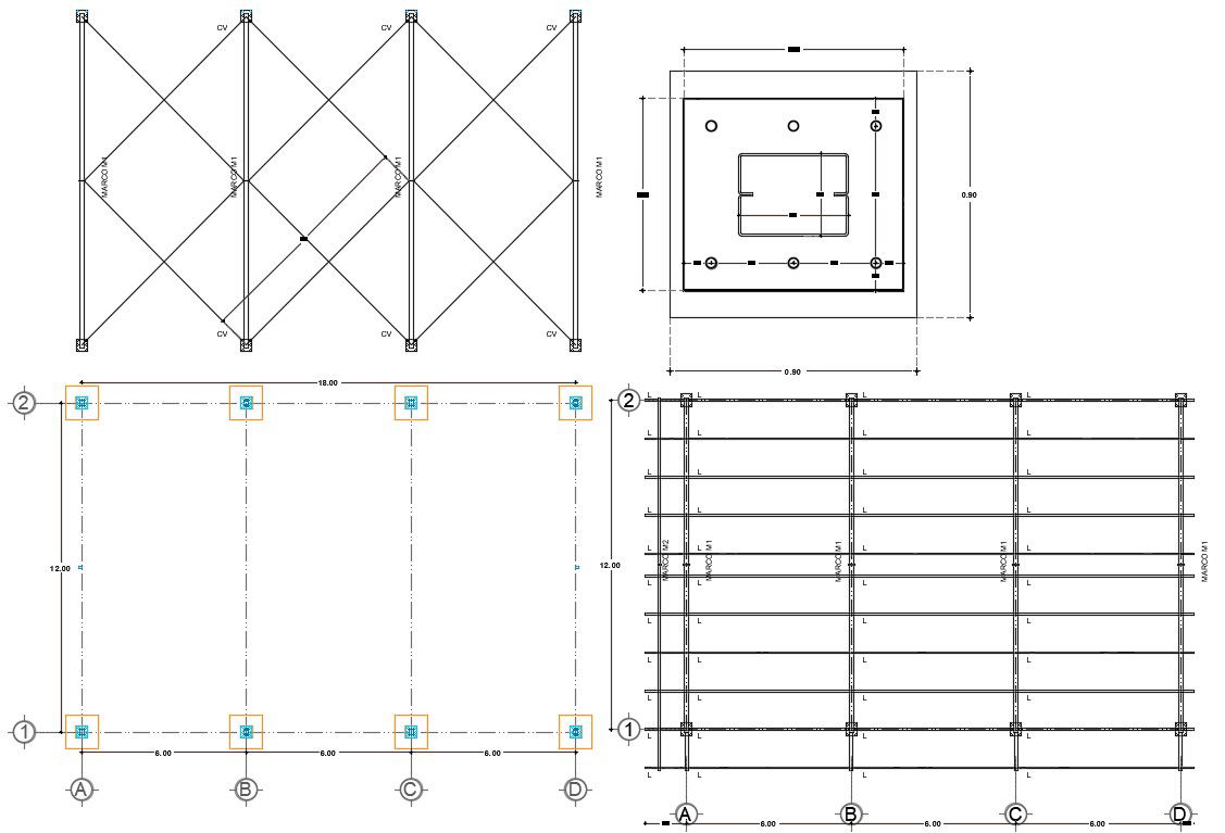
Column layout of 20x14m restaurant plan is given in this Autocad drawing file. This is restaurant building. Total height of the building is 7m. For more details download the Autocad file. Thank you for downloading the Autocad drawing file and other CAD program files from our Cadbull website.
Uploaded by:

