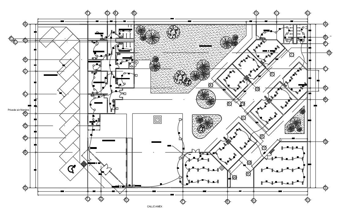
Current socket layout of 70x42m college plan is given in this Autocad drawing file. Download the Autocad model.
Description
Current socket layout of 70x42m college plan is given in this Autocad drawing file. This is single story college building. Waiting area, civic patio, social work, sub direction, library, room of educators, nursing, psychology, gent’s toilet, ladies toilet, dining area, auditorium, class room, conference room, and garden is available. For more details download the Autocad file. Thank you for downloading the Autocad drawing file and other CAD program files from our Cadbull website.
Uploaded by:

