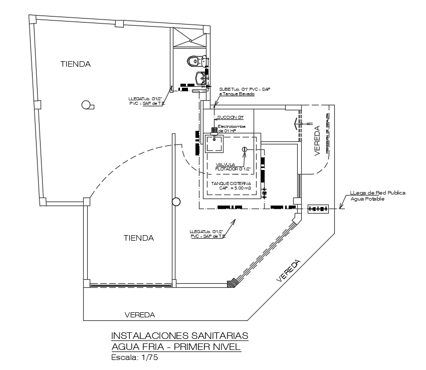
Sanitation cold drainage detail of 10x10m commercial cum staying room first floor plan is given in this Autocad drawing file.Download the Autocad model.
Description
Sanitation cold drainage detail of 10x10m commercial cum staying room first floor plan is given in this Autocad drawing file. This is G+1 commercial building. Garage, warehouse, spare shop, mezzanine switching and water closet are available. For more details download the Autocad file. Thank you for downloading the Autocad file and other CAD program files from our website.
Uploaded by:

