Left side section view of nautical school building is given in this Autocad drawing file. Download the Autocad model.
Description
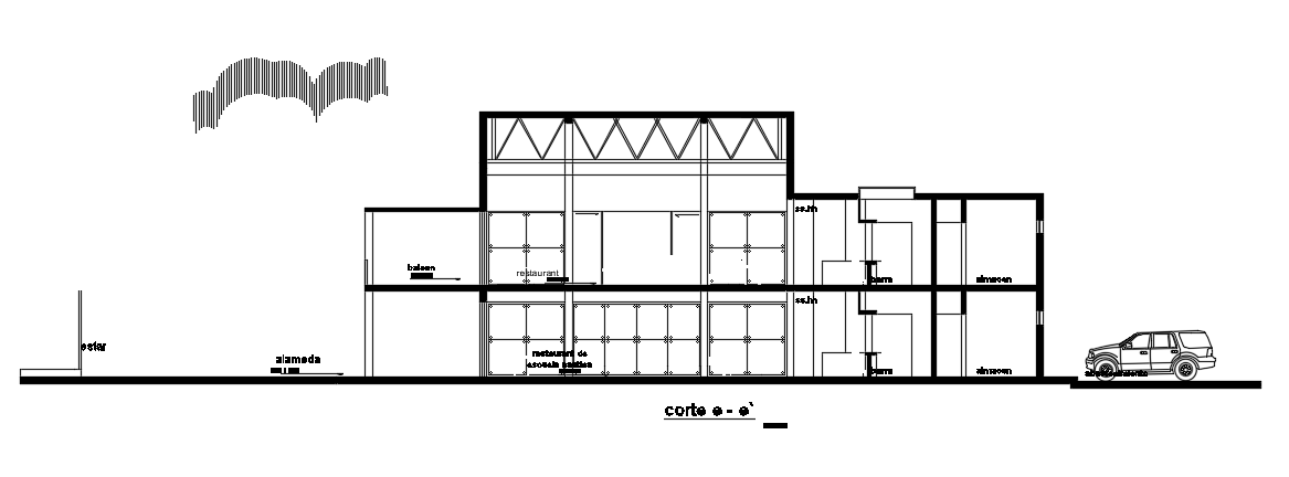
Left side section view of nautical school building is given in this Autocad drawing file. This is G+1 nautical school building. Auditorium, class rooms, hall, restaurant, radio communication, library, computer equipment store room, and stage is available in the first floor. Nautical school restaurant, general information area, information area, class rooms, gent’s toilet, ladies toilet and office room is available in the second floor. For more details download the Autocad file. Thank you for downloading the Autocad file and other CAD program files from our website.
File Type:
DWG
File Size:
3.2 MB
Category::
Structure
Sub Category::
Section Plan CAD Blocks & DWG Drawing Models
type:
Free
Uploaded by:

