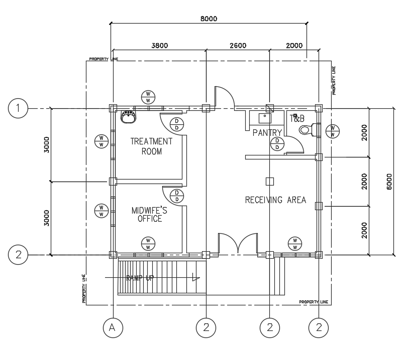
Column marking of 9x9m hospital plan is given in this Autocad drawing file.Download the Autocad model.
Description
Column marking of 9x9m hospital plan is given in this Autocad drawing file. This is single story hospital building. Treatment room, pantry, receiving area, midwife’s office, green area, ramp and porch is available in this plan. For more details download the Autocad file. Thank you for downloading the Autocad file and other CAD program files from our website.
Uploaded by:

