22x7m office ground floor plan is given in this Autocad drawing file. Download the Aotocad model.
Description
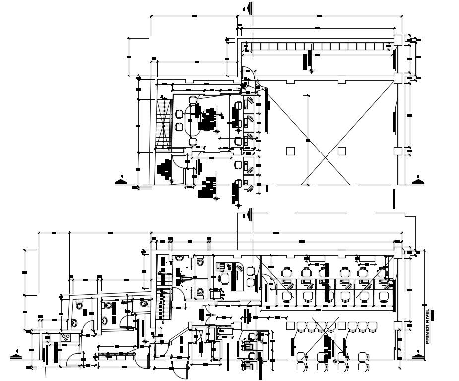
22x7m office ground floor plan is given in this Autocad drawing file. This is G+1 office building. Credit analyst, conference room, Administrative office, gent’s toilet, ladies toilet, kitchen, office area and other details are mentioned in this drawing model. For more details download the Autocad file and other CAD program files from our website. Thank you for downloading the Autocad drawing file and other CAD program files from our website.
Uploaded by:

