22x7m office plan first & second floor is given in this Autocad drawing file. Download the Aotocad model.
Description
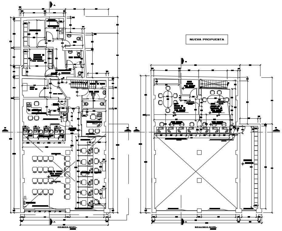
22x7m office plan first & second floor is given in this Autocad drawing file. This is G+1 office building. Credit analyst, conference room, Administrative office, gent’s toilet, ladies toilet, kitchen, office area, Data center, dining area, office work area and other details are mentioned in this drawing model. For more details download the Autocad file and other CAD program files from our website. Thank you for downloading the Autocad drawing file and other CAD program files from our website.
Uploaded by:

