A column layout of 15x6m home plan is given in this Autocad drawing file. Download the Autocad model.
Description
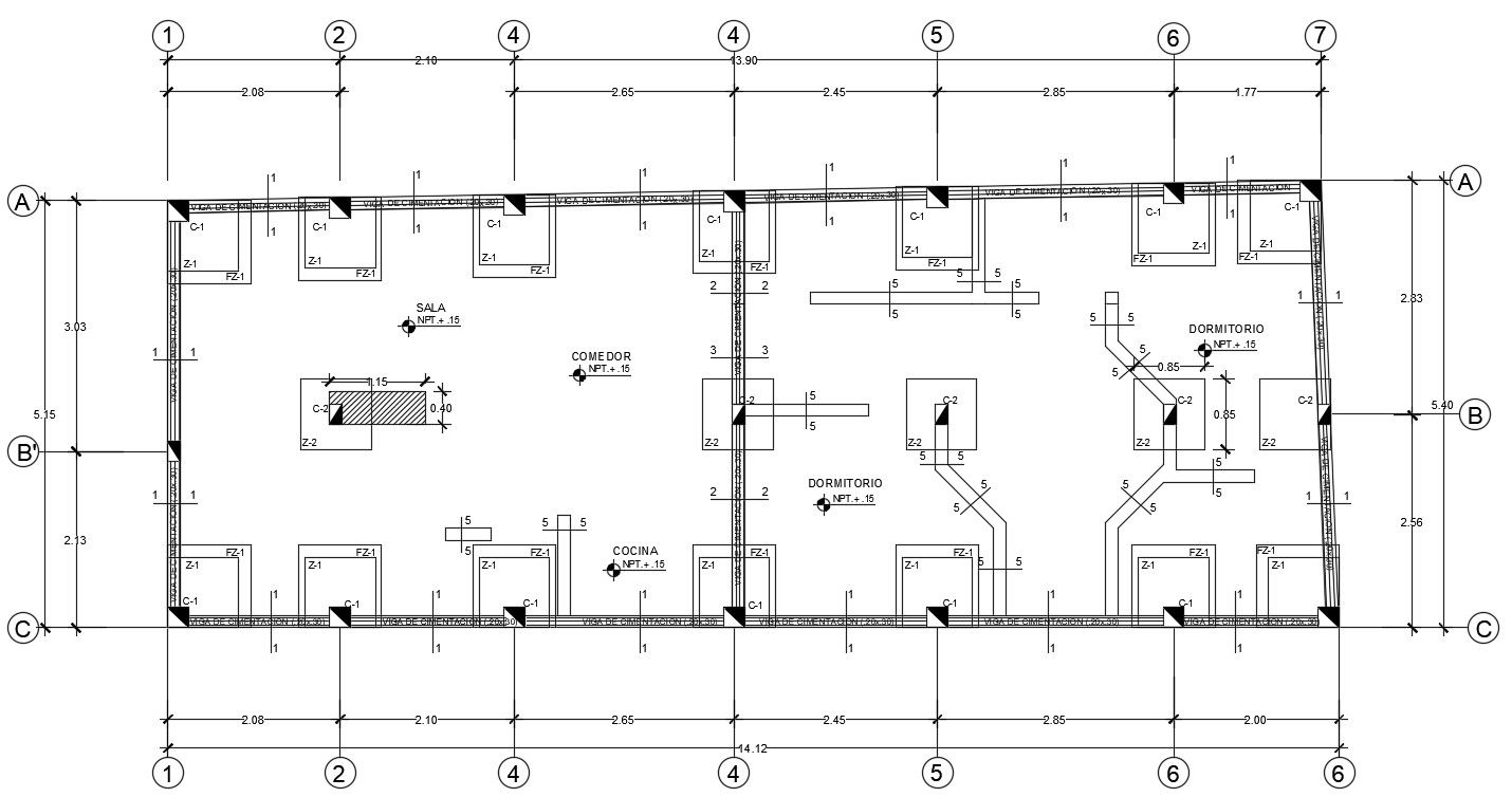
A column layout of 15x6m home plan is given in this Autocad drawing file. This is G+1 house building. Kitchen, dining area, master bedroom with attached toilet, guest room, lavendria, patio and common toilet is available in the ground floor. Master bedroom with attached toilet, kid’s room with attached toilet, patio and common toilet is available in the first floor. For more details download the Autocad file and other CAD program files from our website. Thank you for downloading the Autocad drawing file and other CAD program files from our website.
Uploaded by:

