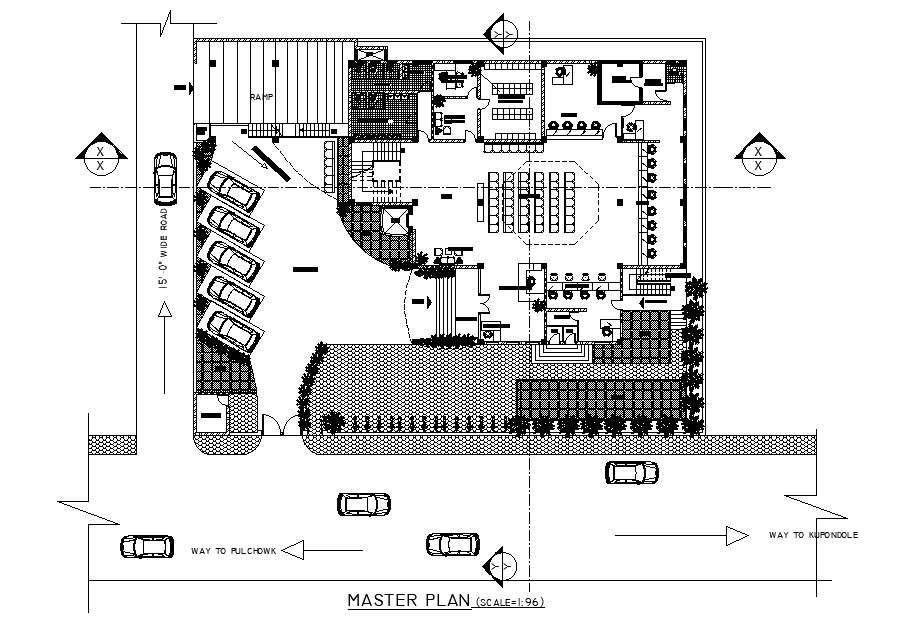
16x12m bank building ground floor plan is given in this Autocad drawing file. Download now.
Description
16x12m bank building ground floor plan is given in this Autocad drawing file. This is G+5 office building. In this car parking, drive way and ramp, lobby, security office, day cash, ATM, reception, waiting area, banking hall, customer locker, locker manager, ladies toilet, gent’s toilet, and wash basin is available. For more details download the Autocad file. Thank you for downloading the Autocad drawing file and other CAD program files from our Cadbull website. e
Uploaded by:

