40’x48’ first floor house plan is given in this Autocad drawing file.Download the Autocad model.
Description
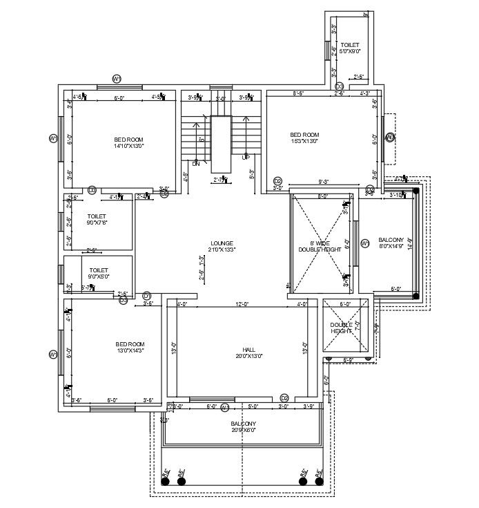
40’x48’ first floor house plan is given in this Autocad drawing file. This is G+1 house building. Kitchen, dining area, drawing room, living hall, common toilet, master bedroom with attached bathroom, kid’s room with attached toilet, puja room, store room and balcony is available. For more details download the Autocad drawing file. Thank you for downloading the Autocad file and other CAD program files from our website.
File Type:
DWG
File Size:
52 KB
Category::
Interior Design
Sub Category::
House Interiors Projects
type:
Free
Uploaded by:

