Left side section view of 16x40m commercial shopping building is given in this Autocad drawing file. Download the Autocad model.
Description
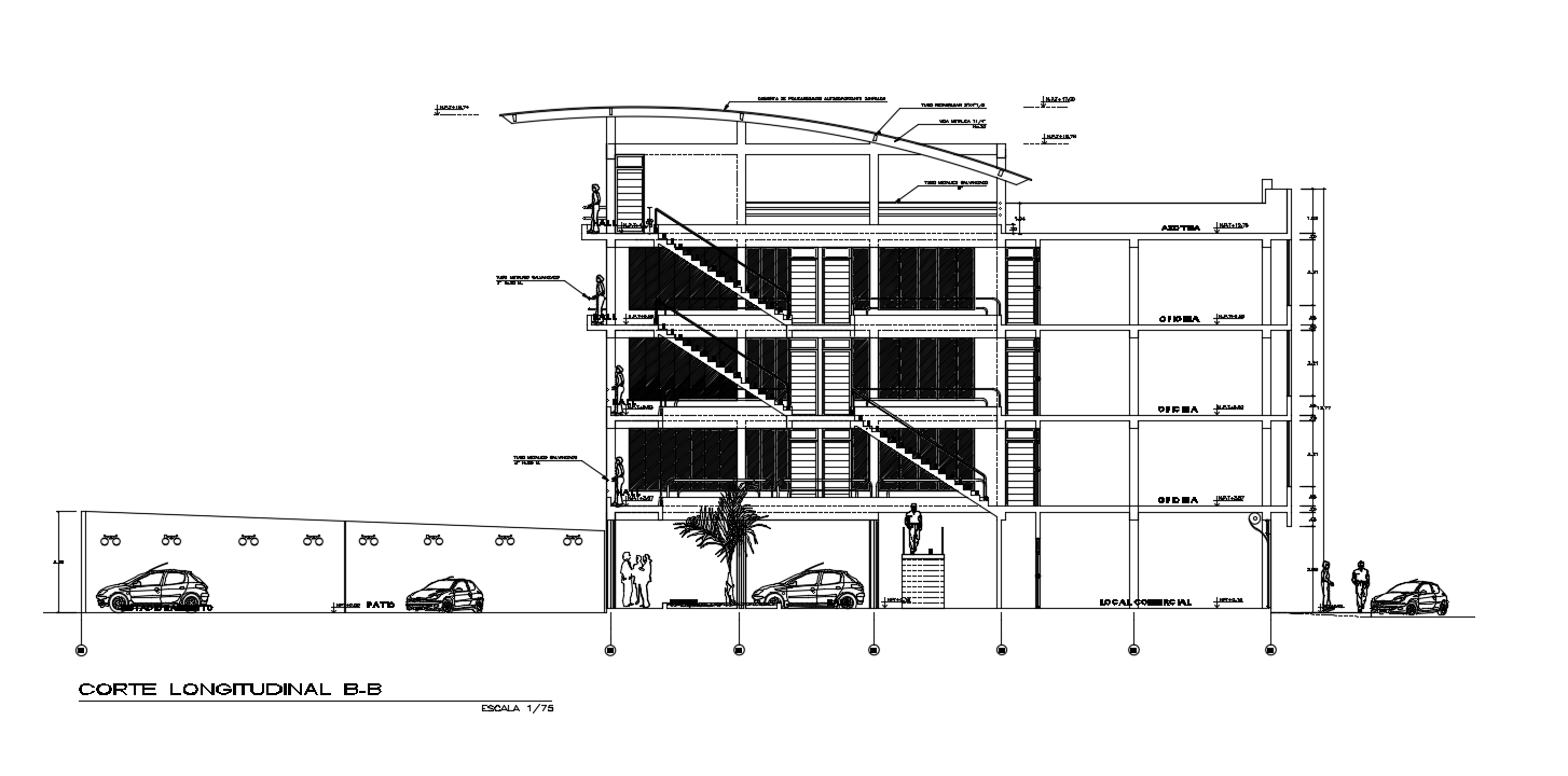
Left side section view of 16x40m commercial shopping building is given in this Autocad drawing file. This is G+4 office building. Local commercial shops, gent’s toilet, ladies toilet and car parking is available in the ground floor. In the first, second & third floor, local commercial shops are available. For more details download the Autocad file. Thank you for downloading the Autocad file and other CAD program files from our website.
Uploaded by:

