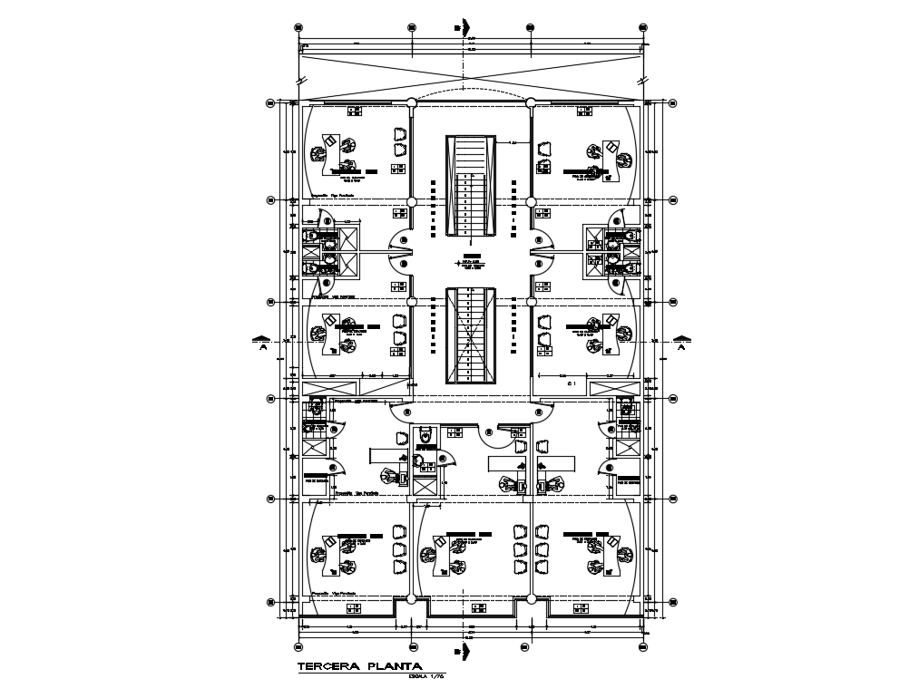
16x40m terrace floor commercial shopping building is given in this Autocad drawing file. Download now.
Description
16x40m terrace floor commercial shopping building is given in this Autocad drawing file. This is G+4 office building. Office work area, gent’s toilet, ladies toilet and other details are available. For more details download the Autocad file. Thank you for downloading the Autocad file and other CAD program files from our website.
Uploaded by:
