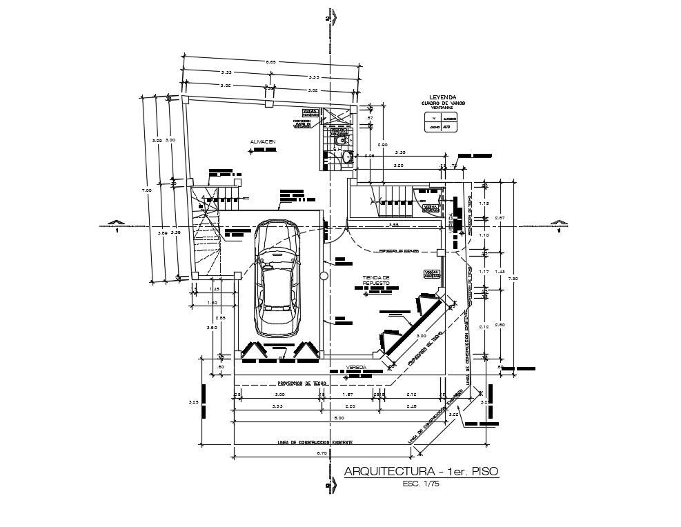
16x13m ground floor apartment plan is given in this Autocad drawing file.Download the Autocad model.
Description
16x13m ground floor apartment plan is given in this Autocad drawing file. This is G+ 4 apartment building. In this car parking, verandah, local shop and common toilet are available. For more details download the Autocad file. Thank you for downloading the Autocad file and other CAD program files from our website.
Uploaded by:

