Typical detail of channel structure is given in this Autocad drawing file. Download now.
Description
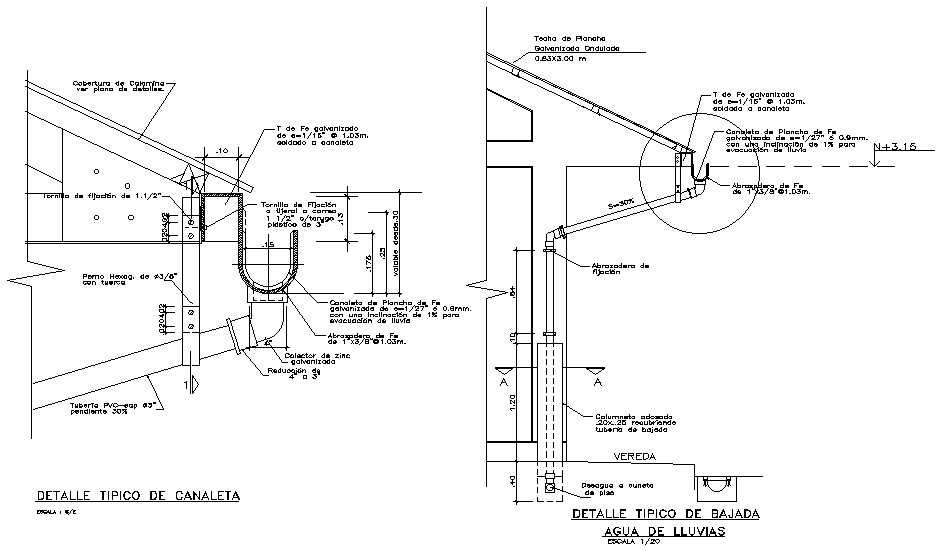
Typical detail of channel structure is given in this Autocad drawing file. Rain water pipe line is given in this Autocad drawing file. Measurement details are given in this model. For more details download the Autocad drawing file. Thank you for downloading the Autocad drawing file and other CAD program files from our website.
Uploaded by:

