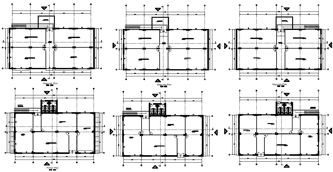
Column layout of 19x10m office plan is given in this Autocad drawing file.Download now.
Description
Column layout of 19x10m office plan is given in this Autocad drawing file. This is G+1 office building. Area Community Services Area, Auditorium, File Cabinet Area and other details are mentioned in this drawing model. For more details download the Autocad drawing file. Thank you for downloading the Autocad drawing file and other CAD program files from our website.
Uploaded by:

