10x40m hospital plan is given in this Autocad drawing file. Download now.
Description
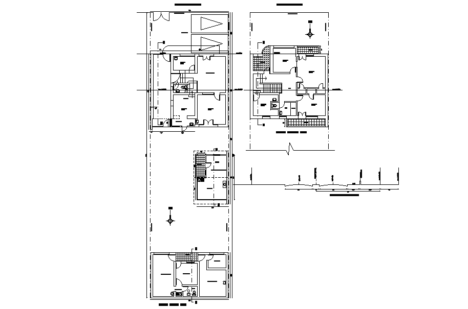
10x40m hospital plan is given in this Autocad drawing file. This is G+ 1 hospital building. Consulting room, gent’s toilet, ladies toilet, pharmacy and other details are mentioned in this drawing model. Other details are given in this model. For more details download the Autocad drawing file. Thank you for downloading the Autocad drawing file and other CAD program files from our website.
Uploaded by:
