Electrical layout of 43x23m bank plan is given in this Autocad drawing file. Download now.
Description
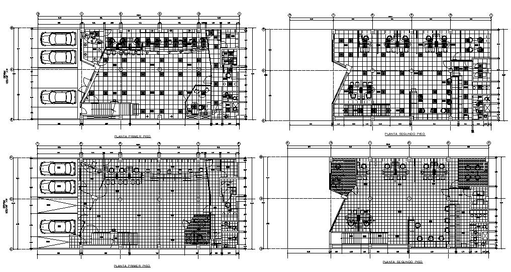
Electrical layout of 43x23m bank plan is given in this Autocad drawing file. This is G+ 1 bank building. Car parking, waiting area, reception, financial area, conference room, gent’s toilet and ladies toilet is available in this ground floor.General manager, executive officer room, manager room, cash counter, reception, waiting area, gent’s toilet and ladies toilet is available in this first floor. For more details download the Autocad drawing file. Thank you for downloading the Autocad drawing file and other CAD program files from our website.
Uploaded by:

