38x17m bank plan is given in this Autocad drawing file. Download now.
Description
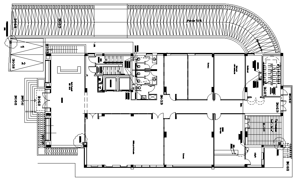
38x17m bank plan is given in this Autocad drawing file. Column layout is given in this plan. Multipurpose room, Computer office, Inverter, Refreshment area and other details are given in this model. For more details download the Autocad drawing file. Thank you for downloading the Autocad drawing file and other CAD program files from our website.
Uploaded by:

