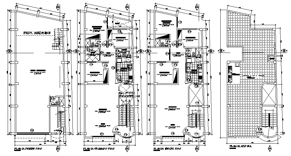
7x18m house plan is given in this Autocad drawing file.Download now.
Description
7x18m house plan is given in this Autocad drawing file. This is G+ 2 house building. In this master bedroom with attached bathroom, guest room, kitchen, dining area, living hall, common bathroom, car parking, portico and other details are available. For more details download the Autocad drawing file. Thank you for downloading the Autocad drawing file and other CAD program files from our website.
Uploaded by:

